当前位置: 首页 > 产品大全 > 某商务宾馆平面图设计方案 功能、流程与舒适度的完美融合

某商务宾馆平面图设计方案 功能、流程与舒适度的完美融合

某商务宾馆平面图设计方案 功能、流程与舒适度的完美融合

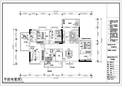
一份优秀的商务宾馆平面图设计方案,不仅是空间布局的图纸呈现,更是对酒店运营效率、客户体验与投资回报的综合考量。本次设计方案以清晰的功能分区、高效的人流动线和舒适的客房体验为核心,通过CAD技术进行精准绘制与表达。

一、 总体布局与功能分区

平面设计严格遵循“动静分离、洁污分流”的原则,将宾馆空间划分为三大核心区域:

  1. 公共接待区: 位于建筑首层及入口附近,包含宽敞明亮的大堂、前台接待、休息等候区、商务中心及自助早餐厅。大堂设计注重营造专业、高效的商务氛围,同时通过艺术陈设软化空间,提供温馨的抵达体验。前台位置需确保对主入口、电梯厅和休息区有良好的视野与控制。
  2. 客房住宿区: 作为宾馆的核心,客房集中布置于建筑上部楼层,确保安静与私密性。平面规划包含多种房型:
  • 标准间: 占比最大,布局紧凑高效,满足基础商务住宿需求。
  • 高级大床房/商务套房: 面积更大,增设独立办公区或休闲沙发,满足高阶商务人士需求。

* 无障碍客房: 按规范设计,位于电梯附近,方便特殊需求客人。
所有客房均规划有独立的卫生间、淋浴间、嵌入式衣柜及迷你吧台区域。

  1. 后勤服务区: 集中于首层非临街侧或地下层,包括员工通道、行政办公、布草间、洗衣房、机房、仓储及垃圾处理间。该区域流线与客人流线完全分离,保障服务高效运转的同时不干扰客人。

二、 人流动线与交通组织

  1. 垂直交通: 核心筒区域设置至少两部客用电梯,速度与载客量需满足高峰时段需求。另设独立的员工/货梯,连接后勤区与各楼层服务间。消防楼梯位置符合规范,确保疏散距离。
  2. 水平流线: 客房层走廊设计避免冗长与单调,通过灯光、地毯和墙面装饰营造宁静氛围。客房房门错位布置,提升私密性。从电梯厅至最远客房的距离得到优化,确保便捷性。

三、 客房单元设计细节

在CAD平面图中,客房内部细节得以精确展现:

  • 入户区: 设置迷你玄关,配备全身镜、控电开关集成的操作面板。
  • 睡眠/工作区: 床体位置避开门口直视区域,保证安全感。靠窗设置多功能书桌,集成电源、网络接口及阅读灯。充足的墙面插座与USB接口是现代商务客房的必备。
  • 卫生间: 采用干湿分离设计。面盆台面宽敞,镜面配备防雾灯。淋浴间与马桶间分隔,提高使用效率。排水坡度、地漏位置、防水门槛等细节在CAD图中均有明确标注。

四、 辅助设施规划

  • 会议设施: 根据项目定位,可能规划中小型多功能会议室,位于首层或二层,靠近公共区但相对独立,便于分隔使用。
  • 其他配套: 可能规划健身房(配备基础有氧与力量设备)、自助售卖区或小型咖啡吧等,丰富住客的有限休闲选择。

五、 CAD图纸的技术表达

设计方案通过一系列CAD图纸系统呈现:

  • 各层平面布置图: 清晰显示墙体、门窗、所有固定设施、家具布置及房间名称/面积标注。
  • 家具尺寸图: 关键区域提供家具布置尺寸图,确保空间合理性与舒适度。
  • 地材铺设图: 明确不同区域(大堂、走廊、客房、卫生间)的地面材料分界与铺设方式。
  • 机电点位示意图: 与平面结合,标示开关、插座、网络面板、灯光出风口等的精确位置,为后续专业设计提供依据。

本商务宾馆平面图设计方案,以CAD为技术工具,旨在创建一个流程高效、居住舒适、管理便捷的物理空间框架。它平衡了投资成本与运营效益,为商务旅客提供了一个安静、便捷、专业的暂居之所,为酒店的长期成功运营奠定了坚实的空间基础。后续的室内装修、机电深化、消防报审等均将以此平面方案为蓝本展开。

如若转载,请注明出处:http://www.olqkscx.com/product/78.html

更新时间:2026-05-20 13:24:34

产品列表

PRODUCT